Tomtestigen 6
Markaryd
Välkomna till Tomtestigen 6 och denna rejäla och välbyggda 1 1/2 plans villa i trä! Här finner ni en hemtrevliga villa för den stora familjen med en bra belägenhet på en återvändsgata i ett av Markaryds mest populära villaområde. I närområdet finns lekplatser och närhet till strövområden i både skog och sjö. Villan är löpande renoverade och underhållen med bl. a bra och billig uppvärmning med Nibe Luft/vatten värmepump inst 2018, Nibe luft/luftvärmepump inst 2017, nytt yttertak och plåt 2014, nya fönster och dörrar 2014, mm. Braskaminen i vardagsrummet ger både värme och trivsel under vinterhalvåret. Trädäck och en liten lättskött trädgård. Ovanpå det vidbyggda garage finns en liten lägenhet med ett sovrum och toalett perfekt boende för en tonåring! Varmt välkomna att boka in er för visning!
Fakta
Utgångspris
Fast.beteckning:
Törnrosa 4
Rum
6 st
Sovrum
3 st
Boarea
174 m²
Biarea
10 m²
Tomtarea
850 m²
Byggnadstyp
1½-plansvilla
Byggnadsår
1976
Övrigt
Visning av villan kommer att ske i mitten på januari 2026.
Rum
-
Interiörsbeskrivning:
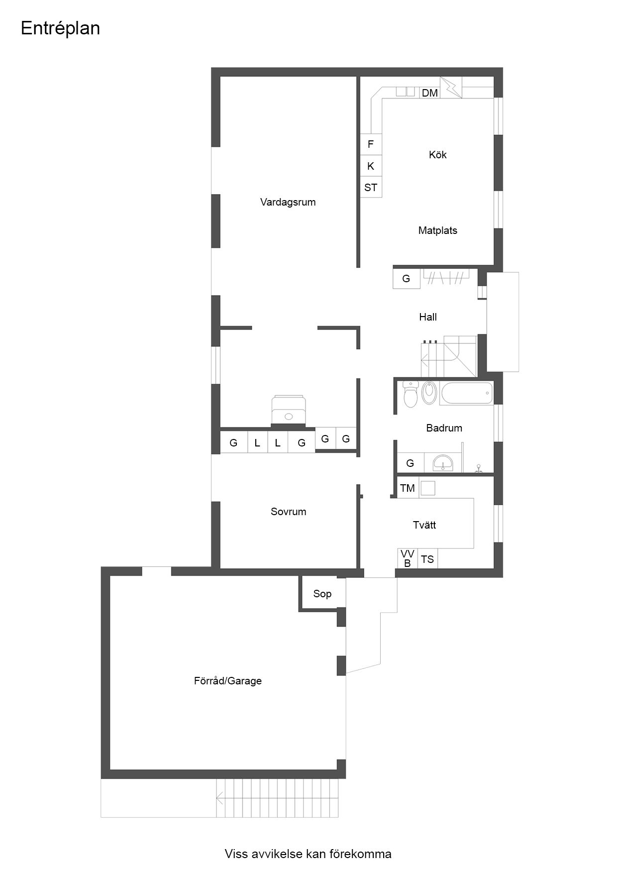
Bv: Grovkök/ tvättstuga på bv med gott om plats och bra med skåp. Utrustat med tvättmaskin/ torktumlare. Stort och ljust kök med vita luckor och utrustat med spis, spisfläkt, ugn, mikro, diskmaskin, kyl/frys. Ett ljust och fint badrum som är klätt med kakel och klinkersgolv. Sovrum med bra förvaringsmöjligheter och utgång till trädäck. Stort och ljust vardagsrum med braskamin som ger både värme och trivsel, utgång till trädgård och trädäck. Öv: Stort allrum som kan delas av till två ytterligare sovrum. Toalett som är utrustat med wc och tvättställ. Sovrum med en större klädkammare. Vidbyggt garage med en liten lägenhet med sovrum och toalett.
Tomt
Trädgårdstomt.
Trädäck.
Planbestämmelser
Stadsplan
Ventilation
Mekanisk.
Vatten och avlopp
Kommunalt vatten året om. Kommunalt avlopp.
Energideklaration
Utförd
Utförd: 10/1 2023
Klass
C
Elektricitet
Nätbolag
Eon
Förbrukning
13 889 kWh/år
Drift per år
Uppvärmning
27 778 kr
Försäkring
3 400 kr
Vatten/avlopp
4 000 kr
Sotning
1 200 kr
Renhållning
2 900 kr
Summa
39 278 kr
Taxeringsuppgifter
Typkod
220, Småhusenhet, bebyggd.
Totalt
921 000 kr
Byggnad
768 000 kr
Mark
153 000 kr
Skatt/avgift
6 908 kr
Taxeringsår
2021
Värdeår
1976
Pantbrev
Summa
1 520 000 kr
Antal
8 st
Byggnad
Typ
1½-plansvilla
Byggår
1976
Bjälklag
Trä
Utv plåtarbete
Lackerad plåt
Fasad
Trä
Grund
Krypgrund
Grundmur
Betongsten
Stomme
Trä
Uppvärmning
Vattenburet system med luft/vatten värmepump från Nibe.
Tak
Betongpannor
Fönster
Isolerglas
Övrigt
Nibe luft/vattenvärmepump inst 2018. Nibe Luft/luftvärmepump inst 2017. Braskamin Handöl. Nytt yttertak och plåtarbeten 2014. Nya fönster och dörrar 2014. Huset målat 2016. Värmeåtervinning via ventilationsystem, nya fläktar och filter 2020.
Övriga byggnader
Vidbyggt garage med sovrum och toalett på öv.
Karta
Bilder
Framsida
Framsida
Entré
Entré
Entré
Entré
Garage
Grovingång
Sidobild
Trädäck, baksida.
Trädäck, baksida.
Sidobild
Trädgård
Trädgårdsbild
Hall, bv.
Kök
Kök
Sovrum, bv.
Sovrum, bv.
Vardagsrum, bv.
Vardagsrum, bv.
Braskamin Handöl, vardagsrum, bv.
Badrum, bv.
Badrum, bv.
Badrum, bv.
Grovkök/ tvättstuga, bv.
Allrum, öv.
Allrum, öv.
Allrum, öv.
Sovrum, öv.
Sovrum, öv.
Sovrum, öv.
Toalett, öv.
"lägenheten" ovanför garaget.
"lägenheten" ovanför garaget.
Toalett, "lägenheten" ovanför garaget.
Planlösning, bv.
Planlösning, öv.
Fastighetskarta