Gårdsvägen 2

SKUMMESLÖVSSTRAND, Skummeslövsstrand

Vinterbonat i populärt fritidshusområde

Ett välskött fritidshus som är vinterbonat och som går att bo i under hela året om så önskas. Flera löpande förbättringar under åren så som badrum, ytskikt, värmepump mm. Insynsskyddad och inhägnad hörntomt i mycket populärt fritidshusområde som blomstrar lever upp sommartid med bla egen pizzeria, glassbar och minigolf mm. Gäststuga med indragen el, robotgräsklippare.

Visningar

  • 11
    april
    lördag
    kl 11:45 - 12:15
    Anmälan krävs - Boka din tid via bokningslänken.
    Klicka här för att boka

Fakta

Utgångspris
1 795 000 kr
Fast.beteckning:

Skummeslöv 1:93

Rum

3 st

Sovrum

2 st

Boarea

60 m²

Tomtarea

500 m²

Byggnadstyp

1-plan

Byggnadsår

1957

Fastighetsmäklare

Profil

Fredrik Jörnkvist

070-333 80 40

fredrik@jornkvists.se

Övrigt

Robotgräsklippare Huset säljes delvis med inventarier.

Interiör

Trivsam och ljus interiör i behagliga toner

Rum

  • Planlösning

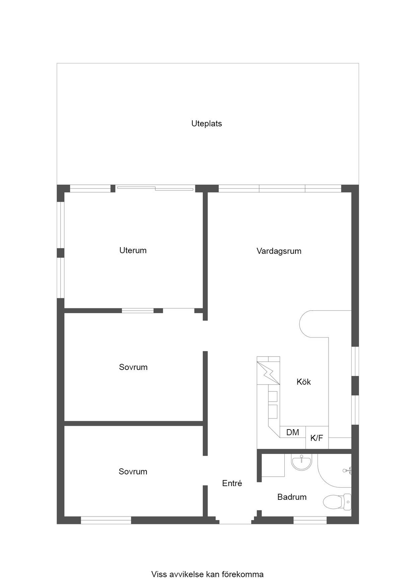
    Entré via farstukvist in i hall med passage in i huset. Härifrån nås direkt det mindre sovrummet samt badrummet. Badrummet går i ljusa behagliga toner och är utrustat med dusch, toalett, kommod med tvättställ och tvättmaskin. Vidare in möter vi vardagsrum och kök i öppen planlösning. Vardagsrummet har stora fönsterpartier mot söder med fina ljusinsläpp, och köket har inredning i modernt grönt. Kök med goda arbetsytor i vinkel och en långbänk med ytterligare gott om förvaringsmöjligheter. Det stora vardagsrummet rymmer en stör dubbelsäng och har flera garderober samt egen utgång mot uterummet och vidare passage ut mot trädgården i söder.

Tomt

Tomtarea ca 500 m² (arrenderätt). Tomten: trädgårdstomt med staket och plank. Eventuellt finns möjlighet att som ny ägare senare friköpa tomten av markägaren om så önskas.

Stenlagd terrass med söder- västerläge.

Bilplats

Infart på tomten med plats för flera bilar.

Bredband

Fiberanslutning.

Ventilation

Självdrag.

Vatten och avlopp

Kommunalt vatten, kommunalt avlopp.

Energideklaration

Utförd

Behövs ej

Elektricitet

Nätbolag

Södra Hallands Kraft

Drift per år

Försäkring

2 000 kr

Vatten/avlopp

5 500 kr

Elförbrukning

15 000 kr

Renhållning

2 500 kr

Summa

25 000 kr

I arrendeavgiften ingår fastighetsskatten för tomten. Uppvärmning ingår i elkostnaden.

Arrende

Avgift
20 891 kr

Löptid

31/3 2027

Taxeringsuppgifter

Typkod

225, Småhusenhet, småhus på ofri grund.

Totalt

1 188 000 kr

Byggnad

1 188 000 kr

Skatt/avgift

5 212 kr

Taxeringsår

2024

Närområde

Skummeslövsstrand är en av Sveriges mest attraktiva boplatser. Här finner du Sveriges längsta sandstrand, hela 12 kilometer lång från Lagans mynning i norr till Båstad i söder. Här väntar salta bad och skön vila i sanddynerna och med tidig vår och lång varm höst förlänger du sommaren. I området finner du också härliga strövområden, kanot, rid- och vandringsleder. Stort antal golf och tennisbanor lockar både boende och besökare från nära och fjärran. Vid Vallåsen hittar du utförsåkning, totalt 11–12 nedfarter fördelade över en fallhöjd på ca 145 meter, med en längsta nedfart på 1 260 meter. Anläggningen har 7 liftar och satsar stort på konstsnö för att säkra skidåkningen i södra Sverige. Här finns också en av Sveriges bästa bikeparks som erbjuder hela 12 leder på Hallandsåsen. Skummeslövsstrand ligger centralt beläget mellan Halmstad och Båstad väster om Europaväg E6, som går genom Halland. Det är bara några kilometer till Båstad och ca 2 mil till Halmstad. Det går även att komma till Båstad via Kustvägen med cykel eller bil utan att köra ut på E6. Nästan en gång i timmen stannar tågen i bägge riktningarna mellan Köpenhamn och Göteborg vid järnvägsstationen. Goda kommunikationer med buss finns till både Laholm och Båstad. I området finns affärer, vårdcentraler, minigolfbanor, padelbanor, tennisbanor, gym, uppvärmd utomhuspool, lekplatser för barnen, skolor, dagis, restauranger, pizzerior, caféer mm, och vid Entré Båstad finns en stor Willys mataffär och flertalet olika butiker, och vid Mellby Center finns bensinmackar, Tesla Supercharger, ICA Maxi och utbud av butiker i olika branscher.

Byggnad

Typ

1-plan

Byggår

1957

Bjälklag

Trä

Fasad

Trä

Grund

Plintar/Torpargrund

Stomme

Trä

Uppvärmning

Luftvärmepump samt elelement med centralstyrd termostat

Tak

Papp

Fönster

3-glasfönster, 2-glasfönster

Renoveringar

2024 Luftvärmepump Daikin 2024 Plejd utebelysning 2024 Kyl/frys 2024 Diskmaskin 2020 Fiber 2016 Badrum.

Övriga byggnader

Gäststuga om ca 10 kvm med indragen el. Redskapsbod och cykelförråd.


Karta


Planlösning


Bilder