Entrésidan

Bergslagsgatan 69

Beckershov, NORRKÖPING

Genomgående och rymlig 2:a med balkong i söderläge i populära Beckershov!

Välkommen till denna ljusa och välplanerade 2:a med genomgående planlösning och fönster i två väderstreck som ger ett härligt ljusflöde genom hela bostaden. Här möts du av ett trivsamt hem där varje kvadratmeter är väl utnyttjad. Det rymliga köket erbjuder gott om arbetsyta och bra förvaring, samtidigt som det finns plats för ett matbord där du kan njuta av både vardagsmiddagar och trevliga stunder med vänner och familj. Badrummet är smakfullt renoverat och utrustat med stilrena duschväggar i glas, kaklade väggar, praktisk plastmatta samt handdukstork som ger extra komfort i vardagen. En perfekt bostad för dig som söker ett ljust, välplanerat och inflyttningsklart hem med trivsam känsla.

Visningar

  • 28
    april
    tisdag
    kl 16:15 - 17:00
    Bokade visningar!
    Klicka här för att boka

Fakta

Utgångspris
1 195 000 kr
Månadsavgift

3 710 kr/mån

Indirekt nettoskuldsättning

39 023 kr

Andel i förening

1.82267 %

Andel av årsavgift

1.82267 %

Fast.beteckning:

Beckershov 4

Rum

2 st

Sovrum

1 st

Boarea

62 m²

Våningsplan

3 / 4

Hiss

Nej

Byggnadstyp

Flerfamiljshus

Byggnadsår

1961

Fastighetsmäklare/Delägare

Profil

Dikran Dogan

0704-796745

dikran.dogan@elitefast.se

Fastighetsmäklare/delägare

Profil

Stefan Karlsson

0738258754

stefan.karlsson@elitefast.se

Övrigt

Genomgående uppfräschning krävs i form av målning och tapetsering.

Tillträde

Efter överenskommelse.

Interiör

Visst behov av uppfräschning av ytskikt

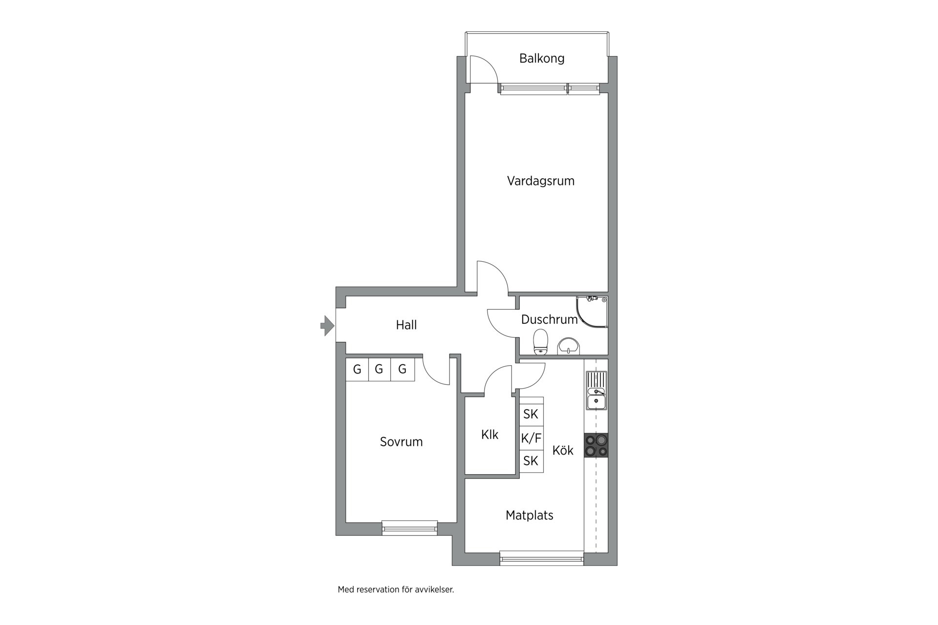
Rum

  • Hall

    Välkomnande hall med bra förvaringsmöjligheter.

  • Sovrum

    Rymligt sovrum med garderobsvägg.

  • Duschrum

    Helrenoverat duschrum med helkaklade väggar och plastmatta. Dusch med glasdörrar, handdukstork, toalett, spegelskåp samt spotlights i tak.

  • Vardagsrum

    Vardagsrum med utgång till den trevliga balkongen.

  • Kök

    Kök med kaklad köksvägg och plats för matgrupp. Fräsch kombinerad kyl/frys, nyare fläkt, spis med ugn.

  • Klädkammare

Månadsavgift

3 710 kr/mån

inklusive värme, vatten, el och bredband.

Indirekt nettoskuldsättning

39 023 kr

Balkong, uteplats och bilplats

Härlig balkong i sydväst läge.

I föreningen finns 11 garageplatser, varav 2 är motorcykelplatser samt 22 stycken p-platser, varav 12 med eluttag. Kostnaden för garage är 650 kr/mån samt 300 kr/mån för p-plats och 400 kr/mån för eluttag.

Bredband

Tv & bredband via Telia (100/100) ingår i månadsavgiften.

Ventilation

Självdrag.

Energideklaration

Utförd

Utförd: 15/3 2019

Klass

D

Drift per år

Försäkring

1 200 kr

Summa

1 200 kr

Närområde

Lugnt och trevligt läge invid av Röda Stan.

Parkering

Boendeparkering samt p-platser i föreningen.

Kommunikation

Spårvagnsförbindelse.

Närservice

Coop samt ÖB.

Övrigt om närområdet

Närhet till påfartsväg mot E4:an för pendlingsmöjligheter samt 51:an.

Byggnad

Typ

Flerfamiljshus

Byggår

1961

Renoveringar

1990-1991: genomfördes renovering av badrum, nya ytskikt på väggar och golv. Utbyte av rörinstallationer och golvbrunnar. Installation av avstängningskranar. 1997-1998: Fasader tilläggsisolerades samt bekläddes med fasadtegel. Utbyte av fönster. Omläggning av dränering och iordningsställande av mark. Målning av källarutrymme. 2000: utfördes en PCB-analys av byggnaden. 2006: utfördes infodring av stammar och stickrör. 2007: renoverades balkongerna. 2008/2009: utfördes radonmätning med godkänt resultat. 2010: byttes samtliga lägenhetsdörrar samt fastighetsboxar installerades i entrén. 2012: gjordes en totalrenovering och tillbyggnad av tvättstuga. 2013: byttes alla stamventiler på värmesidan. 2014: byggdes takentréer samt byte till en mer energisnål fjärrvärmecentral. 2015: alla källarfönster i fastigheten målades. 2016: monterades armaturer på stolpar i planteringen på den nygjorda framsidan. Föreningen tecknade ett 5-års avtal med Telia som innebär en uppgradering av vårt bredband och utökning av tv-kanalerna. 2017: Taket har genomgått en ytrenovering och utrustas med brand- och säkerhetsstege enligt EU normer. 2018: Stamspolning, renoverat pollare och armaturer 2023: Renovering av plåttak 2023: Renovering av tegeltak 2024: Upprustning av gymmet, främst elektronisk bokning och låssystem och stegvis upprustning av lokalen.

Övriga byggnader

Källarförråd tillhörande lägenheten. Två stycken tvättstugor. Det finns övernattningsrum att hyra för medlemmars gäster. Samlingslokal finns fullt utrustad med porslin, glas mm och kan hyras för enklare tillställningar samt gym finns.

Förening

Namn

Brf HSB Allén.

Organisationsnr

725000-0911.

Gårdsplats

Gård med sittgrupper och grillplats.

Om föreningen

Välskött och välordnad HSB-förening i ett lugnt och trevligt område. Mycket låg belåning med mycket god ekonomi.

Organisationsform

Bostadsrätt.

Parkering

11 stycken garageplatser samt 22 stycken p-platser.

Övrigt

Källarförråd tillhörande lägenheten. Två stycken tvättstugor. Det finns övernattningsrum att hyra för medlemmars gäster. Samlingslokal finns fullt utrustad med porslin, glas mm och kan hyras för enklare tillställningar samt gym finns.

Renoveringar

1990-1991: genomfördes renovering av badrum, nya ytskikt på väggar och golv. Utbyte av rörinstallationer och golvbrunnar. Installation av avstängningskranar. 1997-1998: Fasader tilläggsisolerades samt bekläddes med fasadtegel. Utbyte av fönster. Omläggning av dränering och iordningsställande av mark. Målning av källarutrymme. 2000: utfördes en PCB-analys av byggnaden. 2006: utfördes infodring av stammar och stickrör. 2007: renoverades balkongerna. 2008/2009: utfördes radonmätning med godkänt resultat. 2010: byttes samtliga lägenhetsdörrar samt fastighetsboxar installerades i entrén. 2012: gjordes en totalrenovering och tillbyggnad av tvättstuga. 2013: byttes alla stamventiler på värmesidan. 2014: byggdes takentréer samt byte till en mer energisnål fjärrvärmecentral. 2015: alla källarfönster i fastigheten målades. 2016: monterades armaturer på stolpar i planteringen på den nygjorda framsidan. Föreningen tecknade ett 5-års avtal med Telia som innebär en uppgradering av vårt bredband och utökning av tv-kanalerna. 2017: Taket har genomgått en ytrenovering och utrustas med brand- och säkerhetsstege enligt EU normer. 2018: Stamspolning, renoverat pollare och armaturer 2023: Renovering av plåttak 2023: Renovering av tegeltak 2024: Upprustning av gymmet, främst elektronisk bokning och låssystem och stegvis upprustning av lokalen.

Gemensamma utrymmen

Föreningslokal, tvättstuga och övernattningsrum samt gym.

Äger marken

Nej, marken är tomträtt.

Tv och bredband

Tv & bredband via Telia (100/100) ingår i månadsavgiften.

Tillåter juridisk person som köpare

Ej angivet.

Äkta förening

Ja.

Lägenheter

54 st.

Lokaler

3 st.

Pantsättningsavgift

588 kr.

Överlåtelseavgift

1 470 kr. Betalas av Säljare.


Karta


Planlösning


Bilder