Västanvik 185
Strömsund
Gård med exklusivt boende med tillhörande sjötomt belägen vid Ströms Vattudal, strax norr om Svaningen, ett stilfullt och nybyggt hem från 2025. Omgiven av stora fjällområden som Hotagsfjällen, Munsöfjället och Fiskåfjället. En oas av lugn och ro. Nybyggd villa med hög inredningsstandard. Ett vardagsrum med en takhöjd på 5,2 m inbjuder till storslagna middagar. Den öppna planlösningen mellan kök och vardagsrum skapar en social och hemtrevlig miljö. Tre sovrum, helkaklad badsalong med anslutande bastu. Bergvärme med golvvärme. Här kan ni njuta av det ultimata livet. En promenad ner till den egna stranden, ta båten och åk på en fisketur. Området erbjuder oändliga fiskemöjligheter. Du har direkt tillgång till friluftsliv året runt, från fiske, paddling och bad på sommaren till skidåkning och snöäventyr vintertid. Hotagen är renarnas och vildmarkens naturreservat. Här finns tusentals renar under stora delar av året. Du hittar också urskog, mycket djur och vackra fjäll. Och reservatet är faktiskt bara lite mindre än Öland om vi ser till arealen.
Visningar
-
7februarilördagkl 12:00 - 13:00Föranmälan till 070 884 88 89Klicka här för att boka
Fakta
Utgångspris
Fast.beteckning:
Svaningen 1:56
Rum
5 st
Boarea
148 m²
Byggnadstyp
1.5 plan
Byggnadsår
2025
Fastighetsmäklare
Tillträde
2026-02-28.
Tv
Föreslås att man anlitar Star Link för bredband. TV via parabol.
Taxeringsuppgifter
-
Typkod: 113, Skatt/Avgift: kr, Taxeringsvärde: 105 000 kr
Värderingsenhet
Värdeår
Taxeringsvärde
Betesmark
4 000 kr
Ekonomibyggnad
12 000 kr
Skog
89 000 kr
Pantbrev
Summa
15 900 kr
Antal
2 st
Närområde
Västanvik är en mindre ort inom Strömsunds kommun i Jämtlands län, en stor landsbygdskommun känd för sin vackra natur, med sevärdheter som Vildmarksvägen och Hällingsåfallet, och är en del av det Norra Jämtland som präglas av fjäll, skog och många vattendrag.
Kommunikation
Till Strömsund ca 79 km Till Gäddede ca 53 km.
Övrigt om närområdet
Munsfjället står ganska ensamt i ett skogslandskap vilket ger en fantastisk utsikt från toppen. På Munsfjällets östra sida brukar det ofta ligga kvar en fläck med snö under sommaren. Här finns fina vandringsleder. Munsfjället är1 188 meter högt. Fiskåfjället ligger i närheten av Strömsund, känt för sin höjd på cirka 1 193 meter över havet och sin placering i Frostvikentrakten, och det är ett populärt mål för fjällvandring och löpning. I Svaningssjön finns öring, röding, abborre, gädda, harr, sik. Rush North AB säljer fiskekort. Här finns fiskevatten för alla.
Bostadshus
Typ
1.5 plan
Byggår
2025
Boarea
148 m².
Byggnadsyta
143 m².
Övrigt yta
taxeringsinformation.
Antal rum
5 st.
Driftkostnad
33 200 kr Driftskostnaderna är uppskattade för permanentboende. Dessa kan variera beroende på antal boende, nyttjande av fastigheten för fritid eller permanentboende, väderförhållanden, el-priser mm. Avgift tömning av sopkärl tillkommer med f n kr 88 per gång.
Bjälklag
Trä
Utv plåtarbete
Lackerad plåt
Fasad
Stående träpanel
Grund
Betongplatta
Stomme
Trä
Uppvärmning
Bergvärme, golvvärme
Tak
Falsat plåttak
Fönster
3-glas med spröjs
Vatten/avlopp
Eget vatten, borrad brunn. Eget avlopp till 3-kammarbrunn.
Tomt
Sjötomt med plats för brygga. Virke för byggnation av brygga finns. El finns att tillgå. Gräsmatta runt huset.
Tv
Föreslås att man anlitar Star Link för bredband. TV via parabol.
Interiör
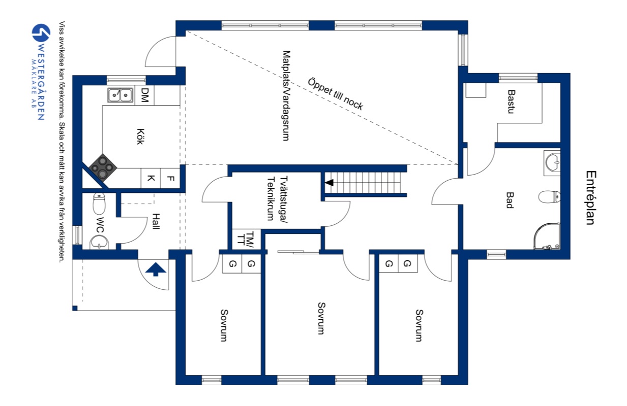
Innerdörrar av furu, allmoge. Hög standard på materialval. Bjelin härdad ek är en hållbar parkett vilket gör det betydligt starkare och mer slitstarkt än traditionella golv. Högsta takhöjd 5,2 meter. Spotlights i hela innertaket med dimmerfunktion. LED Dim Smart Pill Micro finns installerat i varje fönster utom i sovrummen. Dimmern styrs med Bluetooth från app, Smart Switch eller tryckknapp.
HALL
Golv parkett, väggar liggande bred laserad panel, tak furupanel.
KÖK
Golv Bjelin parkett ek, vägg kakel, tak furupanel. spis induktionshäll, fläkt, inbyggnadsugn, mikro. Integrerad diskmaskin, kyl/frys. Profilluckor från Nordanrokök.
VARDAGSRUM
Golv Bjelin parkett ek, väggar liggande bred laserad panel, tak panel upp till nock. Stora fönsterpartier. Utgång till stor altan, delvis under tak.
SOVRUM 1
Golv borstad furu, väggar liggande bred laserad panel, tak furupanel. Plats för garderoger.
SOVRUM 2
Golv borstad furu, väggar liggande bred laserad panel, tak furupanel. Plats för garderob.
SOVRUM 3
Golv borstad furu, väggar liggande bred laserad panel, tak furupanel. Plats för garderob.
BADRUM
Golv klinker, vägg kakel. Vägghängd wc, handfat, dusch med glasdörrar.
BASTU
I anslutning till badrummet. Golv plastmatta, vägg bastupanel. Utgång till altan. Bastuaggregat Harvia.
TVÄTTSTUGA/TEKNIKRUM
Golv plastmatta, vägg våtrumsskiva. Plats för TM och TT. Bergvärmepump CTC, vattenpump, styrsystem för golvvärme.
WC
Golv plastmatta, vägg liggande bred laserad panel, Wc, handfat i kommod, badrumsskåp.
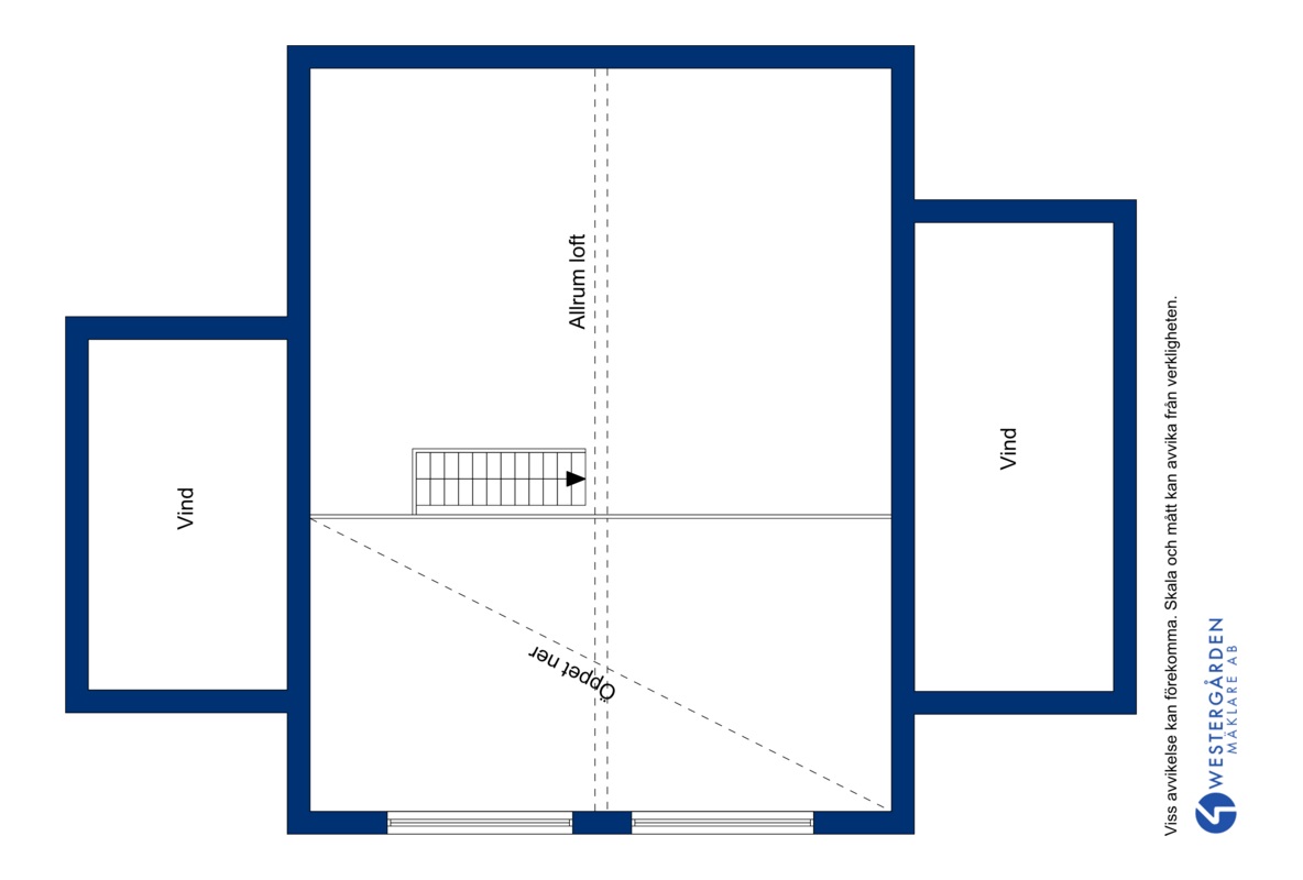
LOFT
Golv borstad furu, väggar liggande bred laserad panel, tak furupanel. Räcke mot vardagsrum ingår och skall utformas i samråd med köparen.
UTHUS / F D LADUGÅRD
Delvis timrad, plåttak. Innehåller vedbod, f d ladugård med körbro. Utedass. Ca 65 kvm.
UTHUS
Brädfodrad, plåttak. Hundgård vid ena gaveln.
Typ
Gård
Övriga arealuppgifter
Samtaxerade fastigheter
Fastigheten ej omtaxerad efter nybyggnationen
Antal skiften
2 st
Areal på antal skiften
3 ha
Arealuppgifter
Summa
3 ha
Bete
1 ha
Skog
2 ha
Marker
-
Jakt
Småviltsjakt på egen mark. Holmens Bruk har stora markområden i närområdet. Det är möjligt att ansöka om jakttillstånd eller till del i jaktlag som jagar på Holmens mark. Årskort för både småvilt och högvilt är ca 2 000 kr / år. Fällavgifter tillkommer. Mer info om jakt finns på Holmens hemsida. -
Strand
Trevligt anlagd gräsplan nere vid stranden. Arbete för anläggning av brygga påbörjad med pålar. Virke för att anlägga brygga ingår. El är framdraget till strandområdet. -
Betesmark
Areal: 1 ha. Brukningsvärde: 30 % lägre avkastn och kvalitet, ev skogsmark i framtiden. -
Skogsmark
Areal: 2 ha.
Taxering
-
Typkod
113
Karta
Bilder
Exteriör
Exteriör
Stor altan, sjöutsikt
Gärdesgård
Exteriör
Vardagsrum mot kök
Fönsterparti i vardagsrum
Rymligt vardagsrum, högt till tak
Vardagsrum mot kök
Kök och del av entréhall
Kök
Kök
Entré
Sovrum
Handgjord våningstrappa
Rymligt loft
Loft, räcke mot vardagsrum ordnas i samråd med köparen
Wc
Bergvärme
Bastu med utgång
Badrummet, inte riktigt klart än...
Väg till stranden
Stranden
Egen strand med plats för brygga. El framdraget
Så här kan det se ut efter en fisketur...
Väg från strand till huset
Planskiss bv
Planskiss loft
Fastighetskarta markerad