Aspö Skarpan 14

Aspö, Strängnäs

För kristider!

Unikt objekt! ”Trygghet och Harmoni i Lantlig Miljö”, ” Permanent eller fritidsboende! Välkomna till denna underbara en plans villa, uppförd år 2017 på en tomt med flertalet äppelträd - perfekt för att släppa ut barnen eller hund fritt i trädgården! Interiört erbjuder huset, öppen planlösning med kök och vardagsrum. Utgång till ett inglasat rum, som blickar ut över den vackra villatomten och stora åkermarker. Ett dubbel garage erbjuder generösa förvaringsmöjligheter, samt parkeringsplatser på tomten. Fastigheten förberedd, redan vid planeringsarbetet år 2016, för eventuella kristider! Beläget i ett lugnt område som genomgått en positiv förändring de senaste åren. Erbjuder närheten till Strängnäs. Kommunikation från Skarpans egen busshållplats vid infarten, till skolorna på Tosterön, såsom Montesori, Tosteröskolan m fl. Buss till Centrala Strängnäs tar 15 min. Övriga Länsbussar, trafikerar väg 55:an, med hållplats Aspö Handel. Kontakta fastighetsmäklaren för privata visningar.

Fakta

Utgångspris
4 300 000 kr
som utgångsbud
Fast.beteckning:

Dalby 4:16

Rum

4 st

Sovrum

3 st

Boarea

98 m²

Biarea

48 m²

Tomtarea

975 m²

Byggnadstyp

1-plansvilla

Byggnadsår

2017

Fastighetsmäklare

Profil

Jeanette Karlsson

070 - 620 91 99

jeanette@tegnerlunden.se

Övrigt

Ett litet detaljplanerat villa område, i jordbruksbygd på Aspö mellan Strängnäs och Enköping! En Gärdesgård runt hela tomten, med gånggrind på fram- och baksidan, samt en 2 delad kör grind i stålkonstruktion. Här kan man verkligen koppla av. Njuta av alla vilda djur! Nästan dagligen kan man se, ute på odlings fälten. Älg, Dovhjort, Rådjur. Inte minst flytt fåglar, som vilar upp sig innan de flyger vidare till Norra Sverige. Bra kikare är värdefullt att ha tillhands, på strategiska platser. Säljaren har varit sin egen ”byggherre” under hela planerings- och byggprocessen, från år 2016 och till inflyttningen juni 2017, för utom ”snickarfärdigt” enligt avtal med Västkustvillan för Trubadur 98. med ytter- och innerväggar. Dubbelgarage, med takskjutsportar. Övriga hantverkare upphandlades separat. Säljaren anlitade lokala, kända och välrekommenderade leverantörer och hantverkare under hela byggprocessen. Endast ”skalet” med ytter- och innerväggar till Trubadur 98 upphandlades. Egen beställning: Alla innerdörrar är skjutdörrar, vilket gör huset lätt möblerat! Klinkergolv i hela huset, med golvvärme, lättstädat! I köksdelen finns en vedeldad Italiensk bakugn, som murats upp på plats. Alla bakredskap ingår i försäljningen. En eluppvärmd handdukshängare finns på höger sida av ugnen, för kökshandduk och disktrasa. Köksinredningen har många finesser, och tillverkat på ett snickeri i Malmköping. Granitbänkar i vinkel, och på köksön med kyl och frysskåp inunder. Frysbox, Kyl o Frysskåp, finns som ”lager” i garaget. Där finns även Avantiskåp för konserver och torra varor. I hygienutrymmet för gäster, har tvättstället rörelse fri vattenarmatur, likaså i stora hygienutrymmet. Förberett för elektronisk bidé. se länk. https://www.facebook.com/svancare/videos/automatisk-bid%25C3%25A9toalett-med-tv%25C3%25A4tt-och-torkfunktion-bidette-r3/282985695702994/?locale=sv_SE Dux Avantis, garderobssystem finns i hall och de två mindre sovrummen. Ingår! I grovingången, ut till garaget, finns vägg-/hyllsystem ELFA, likaså i garaget. Ingår i försäljningen! En c:a 13 kvm. Inglasning finns på baksidan, med öppningsbara glaspartier på 3 sidor. En oljebaserad masonitskiva, som fuktspärr ligger under heltäckningsmattan. Rummet kan rymma upp till 10-12 personer, när man möblerar upp med långbord. Inredningen kan säljas separat! Lägereld, med ”Stor tak” för skydd mot regn och snö, från Haparanda Timber. Sittplatser för upp till 14 personer, med Vind nät, finns framför uterummet. Alla special verktyg, och björkved som finns kvar i 2 dynlådor ingår. Fastigheten förberedd, redan vid planeringsarbetet år 2016, för eventuella kristider! I dubbelgaraget finns det skåp och hyllor, som kan lagra konserver/torra varor samt vatten, som förnyas med regelbundet. En Italiensk vedeldad bakugn, uppmurad på plats, med ved utrymme inunder. Investeringskostnad c:a 35.000:- Lägerelden, från Haparanda Timber, för upp till 14 personer, under tak och med vindskydd. Många redskap för matlagning ingår vid försäljning. Investeringskostnad c:a 50.000:- . Även björkved som finns kvar vid försäljning ingår. Lantbrukare på Aspö kan levererar, 30 cm kluven och torr björkved och kan lagras upp i 2 stora Dyn lådor som ingår vid försäljning.

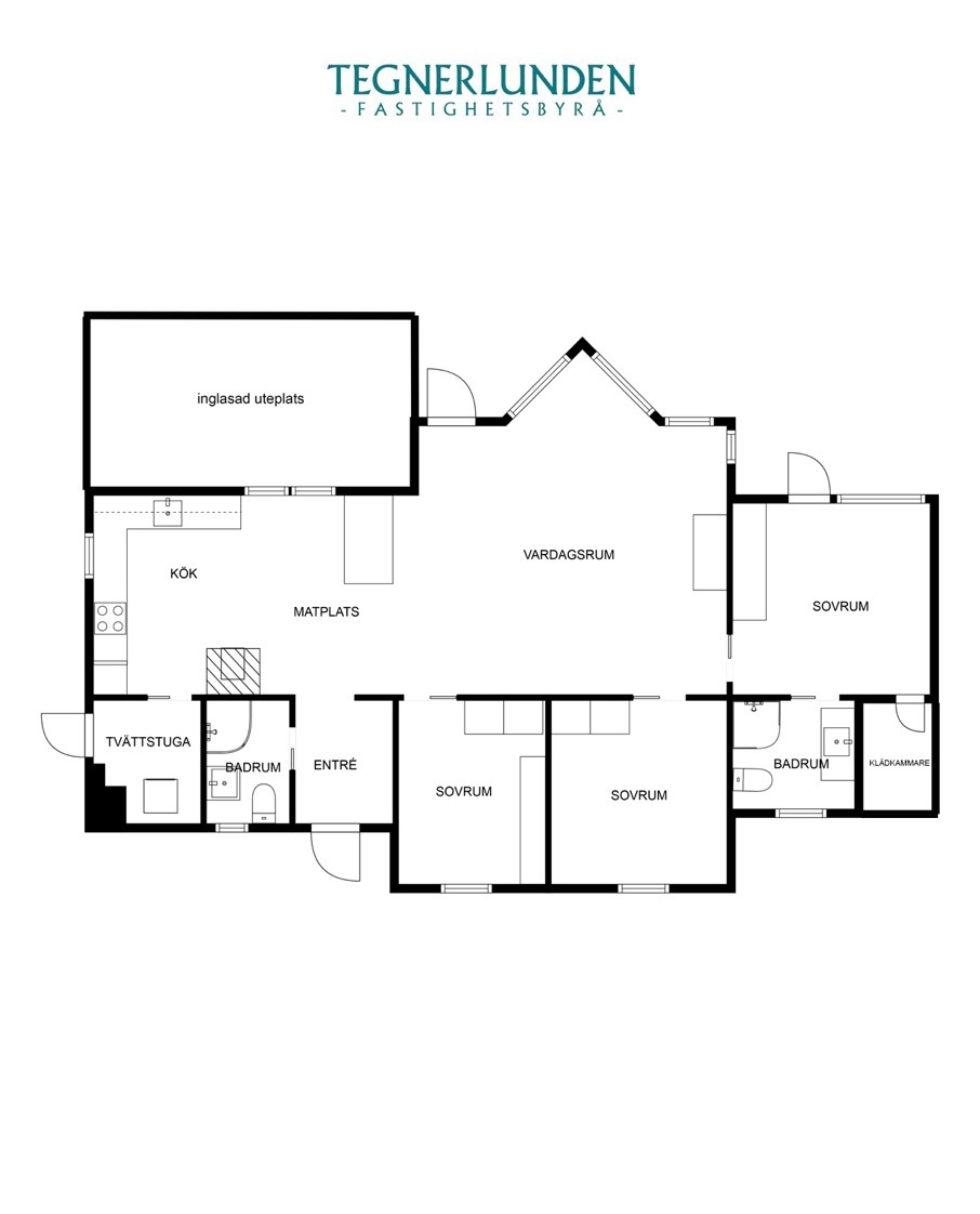
Interiör

En-plans villa allt i ett plan med öppen planlösning sobra färger och klinkergolv i hela huset, med golvvärme, lättstädat!

Rum

  • Entré

    Entré: Hall med klinkergolv, ljusa väggar. Två DUX Avanti garderober . för skor och ytterkläder. En av garderoberna med spegeldörr.

  • Gäst-wc

    Handfat med rörelse fri vatten armatur och wc-stol i vitt porslin. Kakel och klinkergolv. Dusch väggar i ofärgat glas.

  • Kök

    Hjärtat av huset det stora ljusa köket med flera stora fönster som ger ett vackert ljusinsläpp och utgång till altan och granne med åkermark. Matplats för minst 12 personer. Arbetsdel i köket, i mitten en köksö, bra med förvaring och arbetsytor, spis, fläkt och rostfri ho. kyl/frys, varmluftsugn och mikrovågsugn. Diskmaskin , rostfri diskho. Ljust grå köksluckor, vitt kakel över arbetsbänkar som är i granit. I köksdelen finns en vedeldad Italiensk bakugn, som murats upp på plats. ”En eluppvärmd handdukshängare finns på höger sida av fundamentet till ugnen.

  • Vardagsrum

    Med plats för den stora familjen. Ljus gråa väggar, klinkergolv och hel fönstervägg och utgång till stenlagd uteplats.

  • Master bedroom

    Rymligt master bedroom, målade väggar, klinkergolv. Klädkammare med bra med förvaring. Utgång till trädgården.

  • Dushrum

    Handfat med rörelse fri vatten armatur och wc-stol i vitt porslin. Kakel och klinkergolv. Dusch väggar i ofärgat glas.

  • Sovrum/kontor

    Ljus målade väggar och klinkergolv. Dux Avantis, garderobssystem.

  • Sovrum

    Ljus målade väggar och klinkergolv. Dux Avantis, garderobssystem.

  • Groventré/ tvättstuga

    Grov ingången, ut till garaget, finns vägg-/hyllsystem ELFA. Klinkergolv måladee väggar. Tvätt pelare. Nibe frånlufts värmepump F 730

Tomt

Trädgård-/naturtomt.

Vacker tomt indelad flera rum. Flera odlingslådor i pallkragar. Fruktträd och bärbuskar så som äpplen, plommon, körsbär och fläder. "Fruktträden dignar av Plommon, Höstäpple och Vinteräpplen Bra skörd detta år".

Inglasat uterum byggt 2021 ca 13 kvm. Stor lägereld med stort tak för skydd mot snö och regn. Flera sittplatser i alla väderstreck.

Planbestämmelser

Detaljplan (2005-05-30)

Servitut, ga, samfälligheter, etc

Gemensamhetsanläggning: Strängnäs Dalby GA:7 ändamål: Vägar, Vattenförsörjning, Avloppsanläggning, Gemensamhetsanläggning: Strängnäs Dalby GA:8 ändamål: Vägar, Kvartersanläggning

Bilplats

Uppställningsplats för hus bil, båtplats eller husvagn.

Bredband

Fiber installerat i fastigheten 2021 med uttag i samtliga rum.

Ventilation

Mekanisk till- och frånluft med värmeväx. Överlåtelsbesiktad.

Vatten och avlopp

GA 7= 17 fastigheter, som omfattar Vattenverk och Reningsverk, med pumpstationer. GA 8= 18 fastigheter, som omfattar vägar med vägunderhåll, väg belysning samt hushållssopor.

Energideklaration

Utförd

Utförd: 29/4 2024

Klass

D

Förbrukning

95 kWh/kvm per år

Elektricitet

Nätbolag

Vattenfall

Leverantör

Vattenfall

Förbrukning

8 990 kWh/år

Drift per år

Uppvärmning

23 500 kr

Försäkring

5 552 kr

Elförbrukning

8 990 kr

Sotning

400 kr

Väg/Samfällighetsavgift

2 000 kr

Övrigt

4 500 kr

Summa

44 942 kr

Annat arbete med hänvisning till hälsa och miljö som utförts på byggnaden Uppgift om total faktisk förbrukning för ovan angiven period var 8904 kwh el. Den faktiska förbrukningen ligger som underlag för beräkning av husets energiprestanda. Efter att den faktiska förbrukningen fördelats ut på eventuell övrig el, uppvärmning, tappvarmvatten, fastighetsel och hushållsel görs en normalisering och huset deklareras utifrån Boverkets definition av ??normalt brukande??????Därför kan de, i energideklarationen, angivna värdena skilja sig från de som fastighetsägaren i första skedet lämnat ifrån sig. Observera att eventuella åtgärdsförslag som lämnas i energideklarationen står enskilt var för sig utifrån nuvarande förbrukning.

Taxeringsuppgifter

Typkod

220, Småhusenhet, bebyggd.

Totalt

2 554 000 kr

Byggnad

2 074 000 kr

Mark

480 000 kr

Taxeringsår

2021

Värdeår

2017

Pantbrev

Summa

2 500 000 kr

Antal

2 st

Närområde

Vid Mälaren ligger området Aspö.Närhet till Allmän och barnvänlig badplats. Aktiva föreningar såsom Hembygdsföreningen och Aspö Bygdegårdsförening, som arrangerar välbesökta PUB-aftnar, även trevliga aktiviteter för barn och unga. Möjlighet kan finnas till båtplats.

Kommunikation

Kommunikation från Skarpans egen busshållplats vid infarten, till skolorna på Tosterön, såsom Montesori, Tosteröskolan m fl. Buss till Centrala Strängnäs tar 15 min. Övriga Länsbussar, trafikerar väg 55:an, med hållplats Aspö Handel.

Närservice

Närhet till Lanthandel,https://www.facebook.com/Aspohandel . Samt till gårdsförsäljning mitt i Mälaren (mellan Strängnäs och Enköping). Morrarö odlar grönsaker och potatis ekologiskt som vi säljer färdigplockade vid vår gårdsförsäljning. Vår odling och lammproduktion är KRAV-certifierad. Vår besättning får gör det möjligt att sälja ekologiskt lammkött (fryst) och lammskinn. Mer information om oss hittar du på vår hemsida, www.hornudden.net och www.morraro.se. På vår facebooksida hittar du information om aktuella öppettider.

Byggnad

Typ

1-plansvilla

Byggår

2017

Bjälklag

Trä

Utv plåtarbete

Målad plåt

Fasad

Trä

Grund

Betongplatta

Grundmur

Pålad grund. Betongplatta

Stomme

Trä

Uppvärmning

Frånluftsvärmepump

Tak

Dubbelfalsad takplåt med solseller.

Fönster

3-glas/isolerglas

Renoveringar

Villan och garage är nymålat, sommaren 2023. Nästa åtgärd om 10 år 2033.

Övrigt

Fasad: Entré sidan: Fönstermarkiser, för de 2 sovrummen, regleras inifrån rummen. Väggmarkis vid huvudingången och sittplatser. Väggmarkis vid ovanför sittgrupp, i vinkel längst till höger Baksidan, Markis vid utgången fr. sovrum 3

Övriga byggnader

Garage 48 kvm kvm. Läger elden Inglasat uterum 13 kvm.


Karta



Bilder