Nybyvägen 32

Sätofta, HÖÖR

Nybyggt 1-planshus!

Drömmer du om att bygga ett 1-planshus? Just nu erbjuds möjligheten att köpa huset som byggs på en fin uppvuxen tomt alldeles i närheten av Ringsjön, Sätofta. Uppförandet är i sitt slutskede och beräknas vara klart i månadsskiftet april / maj. Modernt trevligt alldeles nytt Vimmerbyhus uppfört i 1-plan är perfekt för dig som vill leva i en rymlig atmosfär utan trappor.

Fakta

Utgångspris
5 995 000 kr
Fast.beteckning:

Sätofta 2:17

Rum

5 st

Sovrum

3 st

Boarea

148 m²

Tomtarea

1 350 m²

Byggnadstyp

1-plansvilla

Byggnadsår

2025/2026

Profil

Andreas Thomason

0705-750 751

andreas@nordiska.info

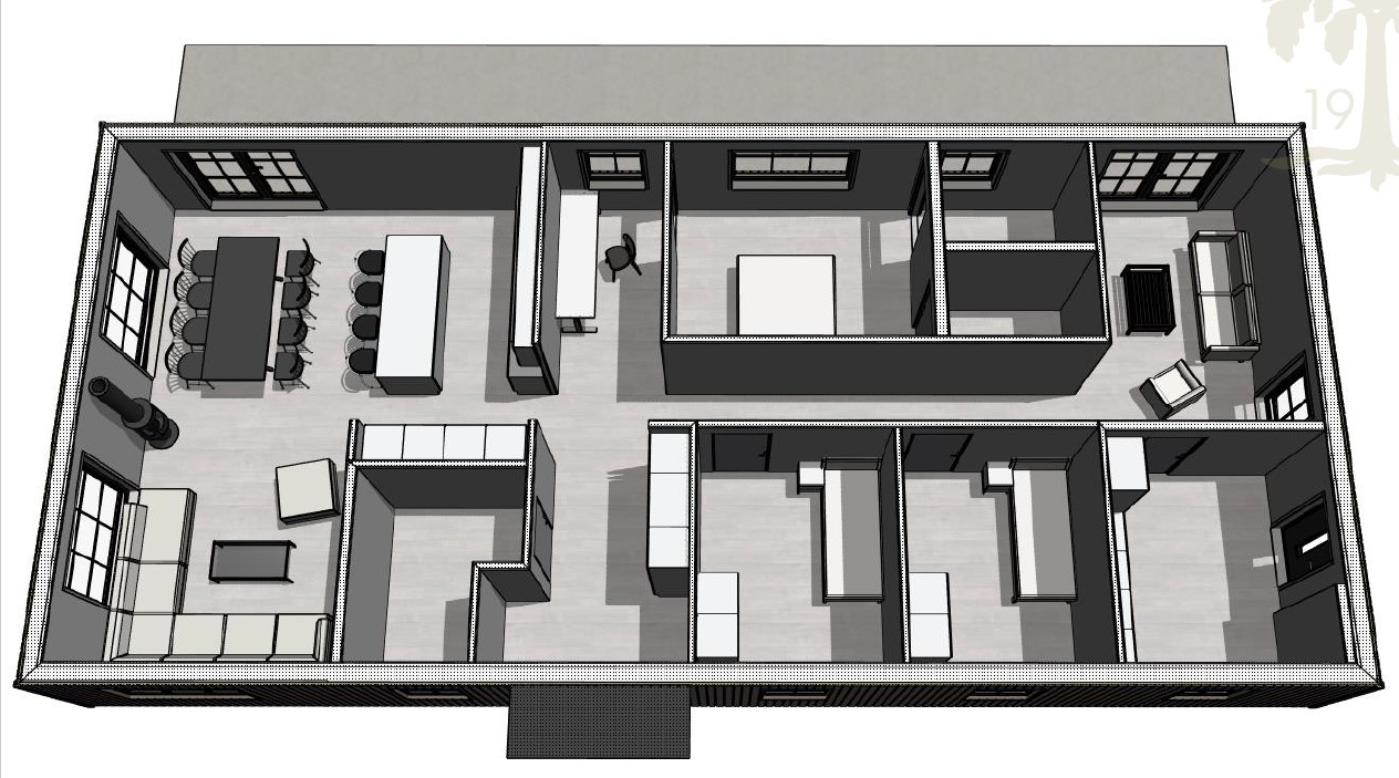
Interiör

Planlösningen är genomtänkt och yteffektiv. Gott om plats för hela familjen med generösa utrymmen, bl a vardagsrum och kök med ett volymskapande ryggåstak! Entréhall, gästwc med dusch, stort allrum och kök i öppen plan. Separat sovrumsavdelning med masterbedroom med egen klädkammare och wc/dusch, ytterligare 2 sovrum, tv-rum samt tvättstuga/groventré.

Rum

  • Entréhall

    Ljust klinkergolv. Plats att hänga ytterkläder. Vita väggar

  • Badrum

    Helkaklat wc med duschhörna, Alterna Picto med klarglasglasväggar. Kommod med handfat. Wc-stol (Gustavsberg Nautic med softclose), badkar Westerbergs Salt 157x80 inkl blandare Grohe GRT 800 krom. Blandare Grohe GRT 800 i krom.

  • Vardagsrum

    Ljust trevligt vardagsrum i vinkel med takhöjd upp i nock, öppet mot kök. Stora fönsterpartier. Ljust parkettgolv (Kährs Chalk 13 mm mattlack, 3-stav ek). Vita väggar

  • Kök

    Köksinrredning från Vedum, "Moa". Vitmålad lucka med lätt rundad kant, Laminatbänkskiva med rak kant. Fullt maskinellt utrustat (Simens, rostfritt).

  • Masterbedroom

    Parkettgolv från Kärhs, wc med duschhörna, Alterna Picto med klarglas (90). Helkaklat, inredning från Vedum, blandare Grohe GRT 800 krom. Wc-stol (Gustavsberg Nautic 1500, golvmonterad med soft close). Klädkammare Vita väggar

  • Sovrum 2

    Parkettgolv från Kärhs. Vita väggar

  • Sovrum 3

    Parkettgolv från Kärhs. Vita väggar.

  • Tv-rum (möjligt 4:e sovrum)

    Parkettgolv från Kärhs. Vita väggar. Kan med enkelhet byggas om till ett sovrum.

  • Tvättstuga / Grovkök

    Ljust klinkergolv. Bänk med skåp, Vedum, (bredd 1800 mm). Laminatbänkskiva, 5002 Chromix silver med rak kant och vitmålad lucka, Elsa. Grohe Eurosmart blandare krom. Vita väggar

Tomt

(Under avstyckning).

Planbestämmelser

Detaljplan (2008-04-23) Vattenskyddsområde (1980-03-18)

Ventilation

Mekanisk.

Vatten och avlopp

Kommunala system.

Pantbrev

Summa

7 000 kr

Antal

1 st

Närområde

Ljuvliga Sätofta med dess omedelbara närhet till både sjö/badplats och det underbara skogsområdet. Det är lätt att ta sig hit med kollektivtrafik eller via den fina gång- och cykelvägen som löper längs med nästan hela vägen från centralorten.

Kommunikation

Höör har bra kommunikationer och rimliga pendlingstider. Med tåget från Höör tar det cirka 20 min till Lund och cirka 40 minuter till Malmö eller Kristianstad.

Övrigt om närområdet

Höör ligger mitt i Skåne, nära både natur och storstad och är en del av den växande Öresundsregionen, med tillgång till en mycket stor arbetsmarknad. Många väljer att bo i Höör och pendla till arbetsplatser i främst Lund och Malmö. Även på andra hållet finns en rörlighet, med inpendling till olika arbetsplatser. Allt drivet av de goda tågförbindelserna. Höör har också ett bra utbud av affärer, service och olika fritidsaktiviteter. Ett rikt kultur- och föreningsliv är ytterligare en anledning att flytta hit. Folkmängden har ökat kraftigt ända sedan kommunen bildades 1969. I hela kommunen bor idag drygt 16 000 personer. Höörs kommun är en av de kommuner i Skåne som har ökat sin folkmängd mest under de senaste 25 åren, procentuellt sett. Prognosen visar på en ökning till drygt 17 000 invånare år 2025.

Byggnad

Typ

1-plansvilla

Byggår

2025/2026

Bjälklag

Trä

Utv plåtarbete

Lackerad plåt

Fasad

Trä, Stående Faspanel 22x145 mm

Grund

Betongplatta

Stomme

Trä

Uppvärmning

Frånluftsvärmepump, Comfortzone RX50 inkl. överdel och ventilationspaket.

Tak

Betongpannor, Benders Palema, 2-kupig

Fönster

Aluminiumbeklädda träfönster, NorDan

Övrigt

Fönsterbänkar av polerad marmor, Marmi Futerno Carrara


Karta



Bilder