Hemmeslövsvägen 80A

Båstad

Tre hus och verkstad

INVESTERINGSTILLFÄLLE ! Fastighet med god avkastning. Här finns en mycket speciell fastighet bestående av 3 separata bostäder och flertalet garage. Bl a en 1,5-plans villa med källare ca 160 kvm, ett annex om ca 50 kvm samt ett gästhus ca 70 kvm samt en verkstad om ca 100 kvm med smörjgrop. Idag hyrs samtliga delar av fastigheten ut med goda intäkter! (37.000 kr / mån).

Fakta

Utgångspris
6 495 000 kr
eller högstbjudande
Fast.beteckning:

Eskilstorp 5:25

Rum

6 st

Sovrum

3 st

Boarea

162 m²

Biarea

86 m²

Tomtarea

2 379 m²

Byggnadstyp

1½-plansvilla med källare

Byggnadsår

1946

Profil

Andreas Thomason

0705-750 751

andreas@nordiska.info

Övrigt

FÖRUTSÄTTNINGAR Objektbeskrivningen grundar sig på information som erhållits från säljaren samt från andra källor. Ingen garanti lämnas avseende beskrivningens riktighet. Säljaren samt Nordiska Fastigheter friskriver sig uttryckligen från allt ansvar, eventuella fel eller ofullständigheter i beskrivningen eller i annan information, muntlig eller skriftlig, som tillhandahålls intressent till fastigheten. Köpare av fastighet har en långtgående undersökningsplikt. Spekulanter uppmanas därför att inför ett eventuellt förvärv noggrant utföra sin undersökningsplikt avseende fastighetens skick och övriga frågor som är av vikt för spekulanten. Mottagare av objektbeskrivningen förbinder sig att endast använda den för detta ändamål och inte kopiera eller delge den till andra utan skriftligt tillstånd. Säljaren förbehåller sig rätten att avböja bud, avsluta pågående förhandlings- eller försäljningsprocess eller ändra ovan angivna riktlinjer utan att ange skäl för detta.

Interiör

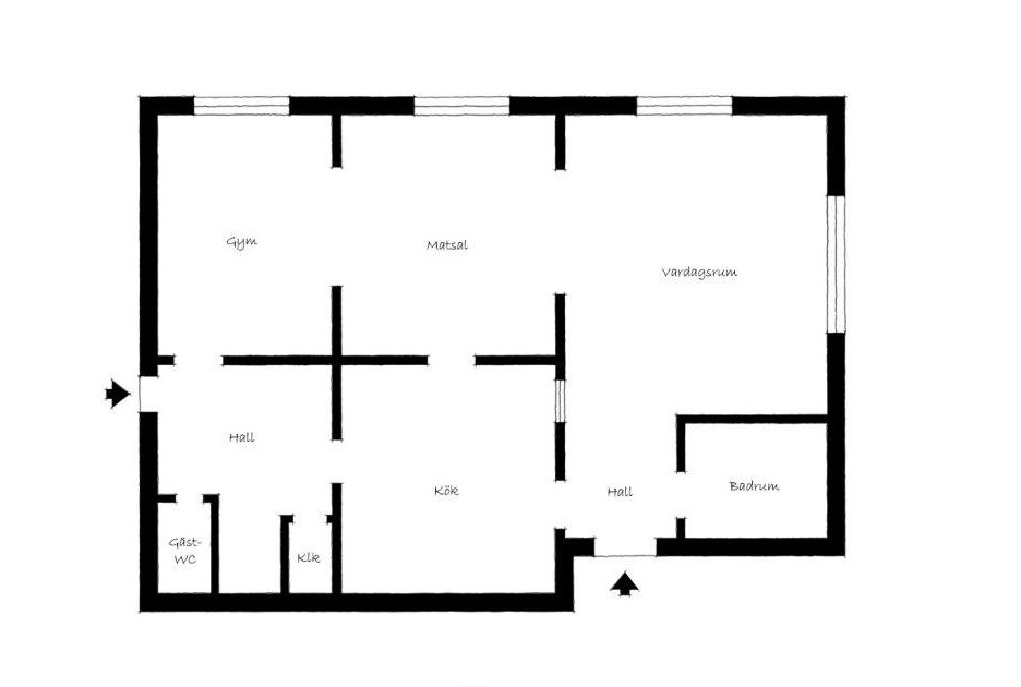
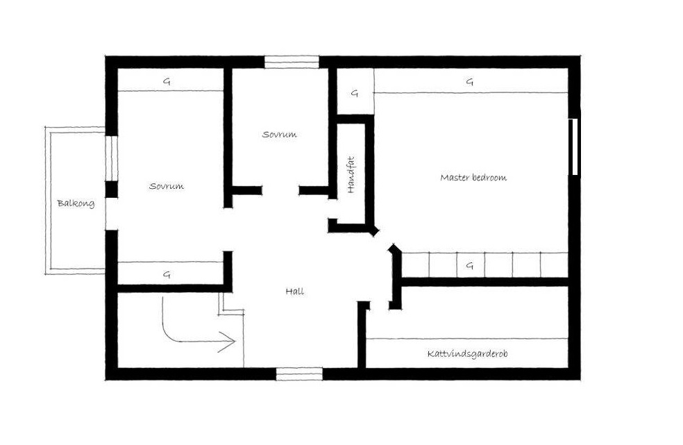
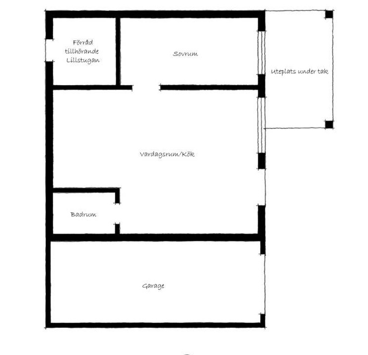
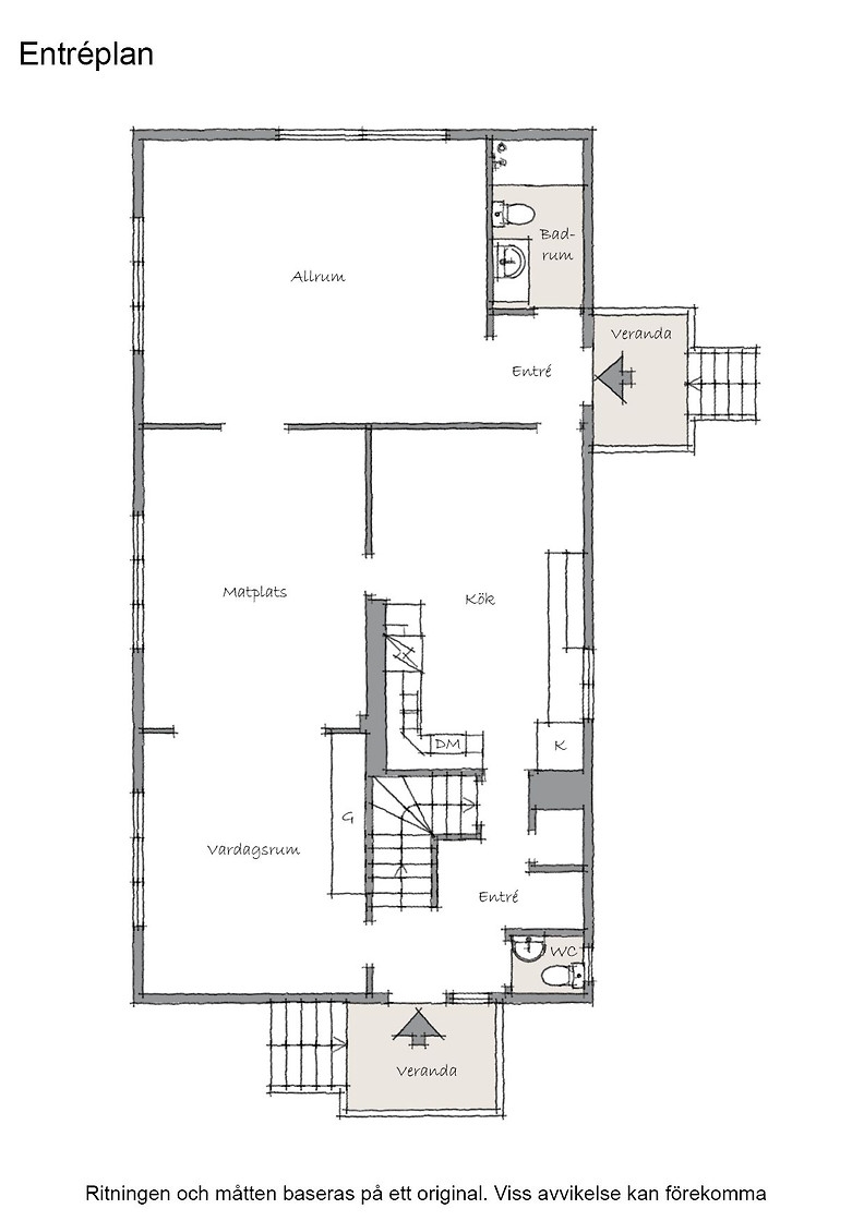
MANGÅRDSBYGGNADEN (Hemmeslövsvägen 80 A) Bottenvåning: Entréhall med gästwc, stort kök med matplats, tre vackra sällskapsrum i fil med parkettgolv. Badrum. Ovanvåning: Tre sovrum, rum med handfat (plats för framtida toalett), möblerbar hall och gott om garderober. Inglasat uterum med tillhörande förråd. Markis finns intill uteplatsen. Källare: Badrum med badkar, toalett och handfat, pannrum samt tvättstuga med tvättmaskin och torktumlare. ANNEX (Herrgårdsvägen 80B) ca 55 m², 2 r o k. Kök med kyl/frys, spis, fläkt. Ett rymligt sovrum. Badrum med tvättmaskin och torktumlare, dusch, handfat och toalett. Klinkergolv. Vidbyggt garage. LILLSTUGAN (Ledugnsvägen 4) ca 70-75 m², 3 r o k. Litet kök med kyl, två stycken frysar, spis, fläkt. Två sovrum, vardagsrum samt matrum med utgång till uterum. Uteplats under tak. Egen trädgård. Lillstugan värms upp med värmepump (luft/luft). VERKSTAD (ca 100 kvm) Isolerad verkstad med och litet kontorsrum. Smörjgrop. Plåttak och eternittak på verkstaden. Värms med egen värmepump (luft/luft) GARAGE Tre st garage varav två är ca 40-45m². Tak: bandad plåt på garagebyggnaderna.

Rum

  • Kök

    Diskmaskin, spis/fläkt, kyl/frys.

  • Badrum

    Badrum med dusch, toalett, handfat. Våtmattor.

Planbestämmelser

Detaljplan (2007-11-07)

Servitut, ga, samfälligheter, etc

Gemensamhetsanläggning: Båstad Eskilstorp GA:4

Vatten och avlopp

Kommunalt vatten året om. Kommunalt avlopp.

Energideklaration

Utförd

Utförd: 13/2 2019

Klass

E

Elektricitet

Nätbolag

Södra Hallandskraft

Leverantör

Södra Hallandskraft

Förbrukning

32 359 kWh/år

Drift per år

Försäkring

4 580 kr

Vatten/avlopp

3 625 kr

Elförbrukning

53 024 kr

Renhållning

2 867 kr

Summa

64 096 kr

I posten "el" ingår även kostnad för uppvärmning för både huvudbyggnaden och det lilla fristående huset "Stor stugan". "Annexet" har en elkostnad på 27 966kr som avser uppvärmning och hushållsel, årsförbrukningen är 9633kWh/år.

Taxeringsuppgifter

Typkod

220, Småhusenhet, bebyggd.

Totalt

1 626 000 kr

Byggnad

1 211 000 kr

Mark

415 000 kr

Skatt/avgift

12 196 kr

Taxeringsår

2021

Värdeår

1946

Pantbrev

Summa

150 000 kr

Antal

2 st

Närområde

Längst upp vid Båstad kommuns gräns mot Laholm, ligger populära Hemmeslöv. Här har man nära till natur, skog och strand. Med cykel tar du dig snabbt till både saluhall, mataffär och flera butiker. Hotell Riviera, som ligger en kort promenad bort, erbjuder både restaurang och pool. I centrala Båstad finns bl a mataffärer, service, mysiga butiker, högklassiga restauranger, gallerier och en biograf. Flera förskolor, skola F-9, Akademi Båstad gymnasium och bibliotek. Flertalet gym, bowling, idrottshall, Äppelgårdens GK, Malenbadet, padel- och tennisbanor. Tågstation i direkt närhet gör det enkelt att ta sig vidare till närliggande orter och städer. Pågatågen till bl a Helsingborg och Halmstad. Från tågstationen avgår även bussar till Ängelholm, Torekov och Båstad. Närmaste flygplats ligger i Ängelholm. Bilresa till Malmö ca en timme.

Byggnad

Typ

1½-plansvilla med källare

Byggår

1946

Bjälklag

Trä

Utv plåtarbete

Lackerad plåt

Fasad

Trä

Grund

Källargrund

Stomme

Trä

Uppvärmning

Luftvärmepump (luft/vatten) samt trippelpanna(olja/el/ved)

Tak

Eternit

Fönster

2-glas

Övrigt

OBS! FASTIGHETEN SÄLJES MED FRISKRIVNINGSKLAUSUL

Övriga byggnader

ANNEX (Hemmeslövsvägen 80B) ca 55 m², 2 r o k. Vidbyggt garage. LILLSTUGAN (Ledugnsvägen 4) ca 70-75 m², 3 r o k samt uterum. VERKSTAD (ca 100 kvm) ca 100 kvm med smörjgrop. Plåttak och eternittak på verkstaden. GARAGE Tre st garage varav två är ca 40-45m². Tak: bandad plåt på garagebyggnaderna.


Karta



Bilder