Vilhelm Mobergs Gata 8
Norrtälje, Norrtälje
Kontor/lagerlokal med generösa ytor.
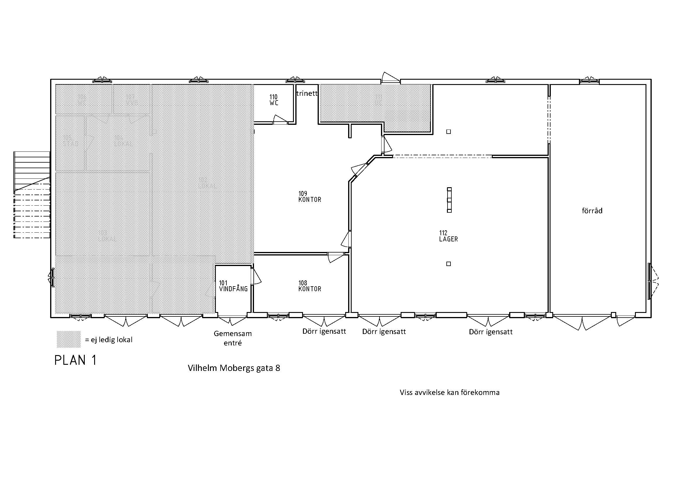
Lokalen är på 235 kvm + vind och har både en garageport och vanlig ingång. Vindsutrymmet bjuder på fantastisk potential med sina vindsfönster och takbalkar. Tidigare hyresgäster använde utrymmet som lager. Men här kunde lika bra vara en lounge, ett kontorslandskap, fem pingpongbord eller en superstor gaminghörna. Det enda som begränsar möjligheterna i denna lokal är faktiskt fantasin. Och möjligtvis plånboken. Kontorslandskap eller mindre kontorsytor – det väljer du! Här finns toalett med dusch, pentry och stora utrymmen som kan användas som kontorslandskap eller som förvaring eller lager. Beroende på hur just era behov ser ut. Med rätt hyresgäst blir denna lokal något alldeles extra. Det går att lägga in extra väggar för att skärma av och göra utrymmet bättre ifall ni behöver ha flera mindre rum. Du kanske har tankar om att expandera? Då kan detta vara rätt lokal att göra det i. Förrådsdel har högt i tak med ingång från lokalen eller via garageport. Hyran fastställes i samråd med hyresvärden och är lediga nu.
Fakta
Yta
466 m²
Hyra
-
Rum
5 st
Företag- och fastighetsmäklare
Vägbeskrivning
Vilhelm Moberg Gata 8 761 46 Norrtälje.
Ytor
Lokal466 m²
Närområde
På Campusområdet finns café, restaurang och dagligvaruhandel på gångavstånd och busstrafik både in till centrala Norrtälje och in till Stockholm.
Karta
Bilder
Kontor/lager
2021 Mopedverkstan Porten
Planskiss
2021 Mopedverkstan vinden
Interiör3
Nedre Botten
Nedre Botten
Nedre botten
Förråd med stor port
Lager bottenvåning
Lager våning1