Villa Omtanke

Billstavägen 58A

Järna

Tomt 2,2 hektar i Järna

Skapa en egen hästgård - Byggklar tomt i vackert lantligt kulturlandskap strax utanför mysiga Järna. Längs den slingrande grusvägen strövar hästar från Järna ridskola. Mjölkkorna från Vretens Gård betar ute på sommarhalvåret. Bara några hundra meter bort i skogskanten passerar Sörmlandsleden. Du har aldrig varit närmare naturen! Tomten är avstyckad från Vretens Gård och omgivningen präglas av ängar och skogsmark. Förhandsbesked från kommunen finns för hus och garage. Välj själv ditt kvalitetshus från Husleverantören Bra Hus. Använd naturen för att skapa en rogivande miljö inomhus och uteplatser med vackra vyer. Sol hela dagen! Tio minuter bort i centrala Järna har du tillgång till pendeltåg, caféer, ekologiska bagerier och mathandel, små butiker, bibliotek, apotek, vårdcentral samt både ICA och Coop. Flera skolor finns att välja på och kommunen erbjuder kulturskola i Järna. I trakterna runt omkring finns såväl små lantliga caféer, badplatser och golfbana. Cirka 20 minuter bort når du Södertälje med Södertälje konsthall, äventyrsbadet Sydpoolen, Torekällberget och pedagogiska och spännande Tom Tits experiment! Det går bra att åka ut och titta på egen hand eller boka tid med mäklaren. Välkommen!

Fakta

Utgångspris
2 500 000 kr
accepterat pris
Tomtarea

22 140 m²

Fast.beteckning:

Fredriksberg 1:100

fastighetsmäklare

Profil

Anders Carlman

070-672 83 44

kontoret@nykvarnsmaklarna.se

Vägbeskrivning

Kör väg 57 från Järna (Mölnbovägen). Efter järnvägsbron tag höger på Billstavägen. Kör några km förbi Järna ridklubb. Se våra skyltar.

Övrigt

Alla bilder i materialet är fotomontage. De byggnader, gräsmattor, häckar etc. som visas är endast illustrationer och stämmer ej överens med verkligheten. Planritningar innehåller extrautrustning som ej ingår i köpet. Husmodellen "Omtanke" är endast ett förslag och kan ändras till andra husmodeller från Bra Hus. Tomten köps med Villabyggnation. Nykvarnsmäklarna AB förmedlar tomten till köparen med samtidigt avtal mellan köparen och Bra Hus & byggentreprenör. Var god se bifogad produktionskostnadskalkyl från Bra Hus. Fastigheten ligger utanför planlagt område. Från och med den 1 december 2025 ges möjlighet att bygga ett attefallshus på upp till 50 kvm utan bygglov på tomter utanför detaljplanelagt område - Exempelvis ett extrahus med hyresintäkter.

Vatten och avlopp

Preliminära kostnader för enskilt vatten & avlopp liksom elanslutning anges i bifogad produktionskostnadskalkyl.

Taxeringsuppgifter

Typkod

210, Småhusenhet, tomtmark.

Totalt

1 066 000 kr

Mark

1 066 000 kr

Skatt/avgift

10 660 kr

Taxeringsår

2024

Närområde

Lantligt läge med flera gårdar och frilliggande villor inom närområdet. Nära naturen med skogs- och naturmark samt ängs- och åkermark.

Kommunikation

Endast 3 km till Järnas tätort - 10 med bil till centrum.

Närservice

Järna centrum med bra utbud av dagligvaror, butiker och kommunal service. Tågstation.

Övrigt om närområdet

Tio minuter bort i centrala Järna har du tillgång till pendeltåg, caféer, ekologiska bagerier och mathandel, små butiker, bibliotek, apotek, vårdcentral samt både ICA och Coop. Flera skolor finns att välja på och kommunen erbjuder kulturskola i Järna. I trakterna runt omkring finns såväl små lantliga caféer, badplatser och golfbana. Cirka 20 minuter bort når du Södertälje med Södertälje konsthall, äventyrsbadet Sydpoolen, Torekällberget och pedagogiska och spännande Tom Tits experiment!


Karta


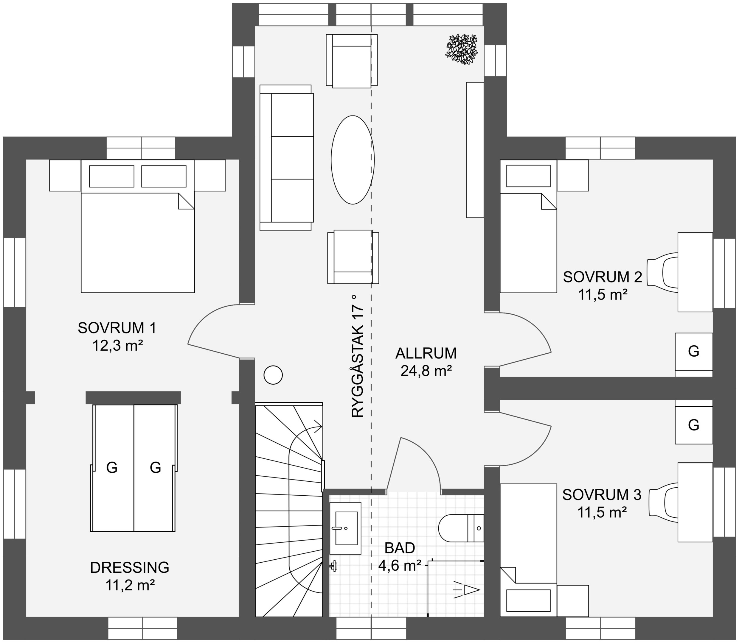
Planlösning


Bilder