Älgstråket 34

Funäsdalen by, Funäsdalen

Fint och välhållet fritidshus på Röstberget och Älgstråket i Funäsdalen! Ett Forsgrens timmerhus byggt 2007 med "wow-läge" i ytterkanten av området och samfälld mark närmast i söder och sydväst. Här är det, så där slående fin utsikt både från altanen och inifrån huset och platsen är rofylld med skogskanten en bit nedanför huset. Fjällutsikten härifrån...kommer man aldrig att tröttna på. Huset med 107 kvm. boarea inrymmer ett ljust, trevligt boende med tre sovrum. Badrum och separat tvättstuga som även inrymmer värmepannan för den vattenburna golvvärmen. En extra wc och en hall med stort kapprum intill är en fördel i ett fjällboende med flera sorters pjäxor, skor och ytterkläder för hela familjen. Här finns ett kök och vardagsrum i vinkel med en trevlig matplats och många fönster som inkluderar en riktigt fin fjällvy. Här flödar ljuset fint och hela huset har en bra planlösning med funktionella ytor och rum. Den täljstensklädda braskaminen i vardagsrumsdelen är både värmande och en fin detalj i huset. Intill huvudbyggnaden finns ett garage med plats för en bil och även ett separat, isolerat förrådsrum. Byggnaden har en grund av gjuten betongplatta och timmerpanel i samma stil som bostadshuset. Byggnadsytan för garaget är 41 kvm. Söker ni ett hus som fritidsboende eller året runtboende, så är det här ett hus för er oavsett! Här finns möjligheten att bo lugnt, avskilt men ändå nära bykärnan med alla praktiska fördelar som det innebär. Närheten till Funäsfjällens spårsystem för längdåkning, möjligheten att ansluta till skoterleder, cykelleder och det bekväma avståndet till Funäsdalsberget med alpin skidåkning skapar också ett mervärde att väga in i fördelarna med den här fastigheten och dess läge! Välkomna att boka en tid för visning!

Fakta

Utgångspris
4 750 000 kr
eller högstbjudande
Fast.beteckning:

Funäsdalen 10:109

Rum

4 st

Sovrum

3 st

Boarea

107 m²

Tomtarea

880 m²

Byggnadstyp

Fritidshus, 1-plan med fristående garage

Byggnadsår

2007

Reg. Fastighetsmäklare

Profil

Jannie Lindberget

070 751 05 16

jannie@lindbergetmakleri.se

Övrigt

Huset säljs möblerat med sängar, soffa matbord m.m.

Tillträde

Enligt överenskommelse.

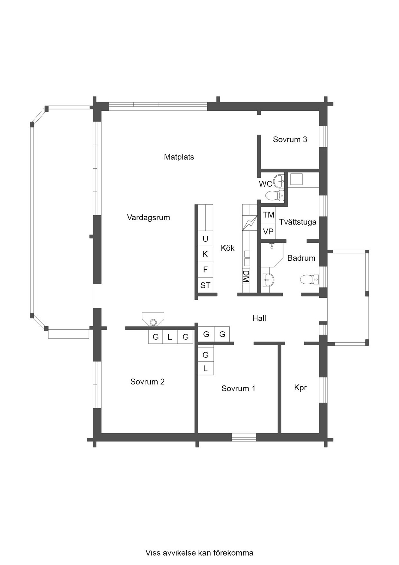
Rum

  • Hall och kapprum

    Husets hall är rymlig och i anslutning till både kapprum, badrum, två sovrum och även kök, vardagsrum. Klinkergolv, tapet på väggar och träpanel i tak. Till vänster i hallen finns ett stort kapprum där alla årstiders kläder och ytterskor får plats. I rummet finns även två garderober och hyllförvaring. Klinkergolv, målade skivor på väggar och träpanel i tak.

  • Badrum

    Direkt till höger i hallen finns badrummet med wc, handfat med underskåp samt dusch med draperi. På väggen finns även en elektrisk handdukstork. Klinkergolv, kakel på väggar och träpanel i tak.

  • Tvättstuga

    Dörren i badrummet leder in till tvättstugan som inrymmer tvättmaskin, tvättbänk med ho och husets värmepanna. En frånluftsvärmepump, Nibe Fighter 360P för den vattenburna golvvärmen. Klinkergolv, kakel på väggar och träpanel i tak.

  • Sovrum 1

    Vägg i vägg med kapprummet finns det första av tre sovrum i huset. Rummet är idag möblerat med två enkelsängar och dubbel garderob. Parkettgolv, tapet på väggar och träpanel i tak.

  • Vardagsrum och kök

    Mellan köket, vardagsrummet och hallen finns en genomgång som skapar ett fint flöde i huset. När du står i hallen och tittar rakt fram, ser du den täljstensklädda braskaminen i vardagsrumsdelen och även altandörren längre bort. En praktisk detalj i huset, är att samma klinker som är lagt i hallen, fortsätter förbi braskaminen och vidare till altandörren. Vardagsrumsdelen är väldigt trevlig med den fina braskaminen, soffan, tv och fåtöljen. I vinkel av rummet finns totalt åtta fönster som vetter mot syd-väst och nord-väst vilket gör både utsikten och matplatsen för 8-10 personer njutbar! Här från matbordet ser du Skarvarna i väster och på altanen alldeles utanför erbjuds en näst intill 180-graders vy på solsidan. Köket i genomgången mellan hall och matplats, är funktionellt med många skåp och bra arbetsbänkar i trä på vardera sida av mittgången. Den maskinella utrustningen består av kyl/frys, spis med fyra plattor och ung, diskmaskin och fläkt. Kök och vardagsrum har golv med parkett, tapet på väggar och träpanel i tak.

  • Sovrum 2

    Sovrum 2 är beläget med ingång intill braskaminen i vardagsrummet. Det här är det största sovrummet med dubbelsäng och två garderober och ändå finns det mycket fria ytor kvar. Utsikten genom fönstret, mot åsen, på andra sidan av Funäsdalssjön är riktigt fin att vakna till! Parkettgolv, tapet på väggar och träpanel i tak.

  • Sovrum 3

    Sovrum 3 finns beläget vid matplatsen. Ett sovrum som vetter upp, mot Röstberget och infarten till huset. Möblerat med en enkelsäng och garderob. Parkettgolv, tapet på väggar och träpanel i tak.

  • WC

    Vägg i vägg med sovrum 3 finns ett extra toalettrum med wc och handfat samt spegelskåp. Klinkergolv, kakel på väggar och träpanel i tak.

Tomt

Naturtomt.

Planbestämmelser

Ändring av detaljplan (2000-03-23) Detaljplan (1989-12-01)

Servitut, ga, samfälligheter, etc

Gemensamhetsanläggning: Härjedalen funäsdalen ga:79 ändamål: Vägar, Elledning och/eller belysning, Grönområden, Garage och/eller parkering, Kvartersanläggning

Bredband

Fiber finns installerat i huset.

Ventilation

Mekanisk frånluft med värmeåtervinning.

Vatten och avlopp

Kommunalt vatten och avlopp.

Energideklaration

Utförd

Behövs ej

Elektricitet

Nätbolag

Härjeåns Nät AB

Leverantör

Fyrfasen Energi AB

Förbrukning

11 291 kWh/år

Drift per år

Försäkring

2 130 kr

Vatten/avlopp

9 156 kr

Elförbrukning

31 466 kr

Sotning

500 kr

Väg/Samfällighetsavgift

5 500 kr

Summa

48 752 kr

Huset har ägts av ett dödsbo och exakta driftskostnader kan därför inte garanteras. Posten vatten och avlopp avser kommunalt VA och renhållning sammanslaget. Huset har varit fullt uppvärmt året runt och nyttjats ca fyra mån/år.

Taxeringsuppgifter

Typkod

220, Småhusenhet, bebyggd.

Totalt

3 242 000 kr

Byggnad

2 047 000 kr

Mark

1 195 000 kr

Skatt/avgift

10 425 kr

Taxeringsår

2024

Värdeår

2007

Närområde

Om Funäsdalen: Vackert belägen mellan berg och sjö med utsikt över fjällen ligger centralorten i området. Gondolbanan kopplar samman berget med byn och skapar inte bara känslan av att vara en skidort utan är det också på riktigt. Här har du ski-in, ski-out läge samtidigt som du är i centrum. Funäsdalen lockar många, sommar som vinter och skapar en skön mix av turister och lokalbefolkning. Funäsdalsberget erbjuder 5 liftar och 17 nedfarter med inte mindre än 300 meters fallhöjd. Gondolbanan är öppen nästan året om och gör det enkelt för alla med eller utan skidor att komma upp på toppen och njuta av den milsvida panoramautsikten. Som den centralort som Funäsdalen utgör för området är alla anläggningar inom rimligt avstånd. Här får du tillgång till 136 nedfarter och 40 liftar på ett och samma liftkort. I Funäsdalen är det aldrig långt till närmaste skid- eller skoterspår. Här finns ett av världens bästa spårsystem, Funäsfjällens längdspår med 300 km pistade skidspår och inte mindre än 610 km preparerade skoterleder som kopplar samman alla byar oavsett vart du bor. Sommartid erbjuder området fina möjligheter till paddling, fiske, ridning, vandring, cykling, golf, bär- och svampplockning. Området kännetecknas av sin lättillgänglighet vilket gör att alla kan få ta del av fjällkänslan, gammal som ung. Endast 5 kilometer bort i Ljusnedal finns Sveriges äldsta 18-håls fjällgolfbana som är värd att besöka. Funäsfjällen är en av Sveriges största skiddestination. Här finns riktiga fjäll. Här ingår förutom Funäsdalen även orterna Tänndalen, Ramundberget, Bruksvallarna, Tännäs och Messlingen. Bïenjedaelie, betyder Funäsdalen på sydsamiska, och ligger inom ett av de sydligaste renbetesområdena i Sápmi. Här finns en levande samisk kultur med renskötsel, traditionell samiskt slöjd och moderna konsthantverk.

Parkering

Parkera enkelt och bekvämt i P-huset i centrala Funäsdalen, strax nedanför påstigning för gondolen som tar dig till toppen av Funäsdalsberget både sommar och vinter. Laddstation för elbil finns bl. a. intill Ica Supermarket Funäsdalen, Kåvan gästcenter. För mer information, sök på https://chargefinder.com/se och sök "Funäsdalen".

Närservice

Här finns en levande bykärna med alla samhälleliga funktioner som du kan tänkas behöva så som förskola, grundskola, mataffärer, välsorterade sport-, kläd-, och inredningsbutiker, restauranger, gym, bensinstationer, post, välsorterade butiker, sjukvård, padelhall, caféer, bibliotek och systembolag.

Övrigt om närområdet

Läs gärna mer om Funäsdalen och Funäsfjällen på: www.funasfjallen.se.

Byggnad

Typ

Fritidshus, 1-plan med fristående garage

Byggår

2007

Utv plåtarbete

Lackerad plåt

Fasad

Värmetimmer (Forsgrens timmerhus)

Grund

Isolerad betongplatta med vattenburen golvvärme

Stomme

Timmer och trä

Uppvärmning

Frånluftsvärmepump Nibe Fighter 360P

Tak

Betongtaktegel

Fönster

3-glas isoler

Övriga byggnader

Garagebyggnad om 41 kvm. BYA. Invändigt med garage om 28 kvm och separat förråd/snickarverkstad om ca 10 kvm. Garaget har isolerade väggar och slag-port. Förrådsrummet är isolerat. Byggnaden har en grundläggning med gjuten betongplatta. Stomme i trä med fasad av timmerpanel och betongtaktegel på tak. Till byggnaden finns el.


Karta



Bilder